HEALTH & WELLNESS

Previous | Next

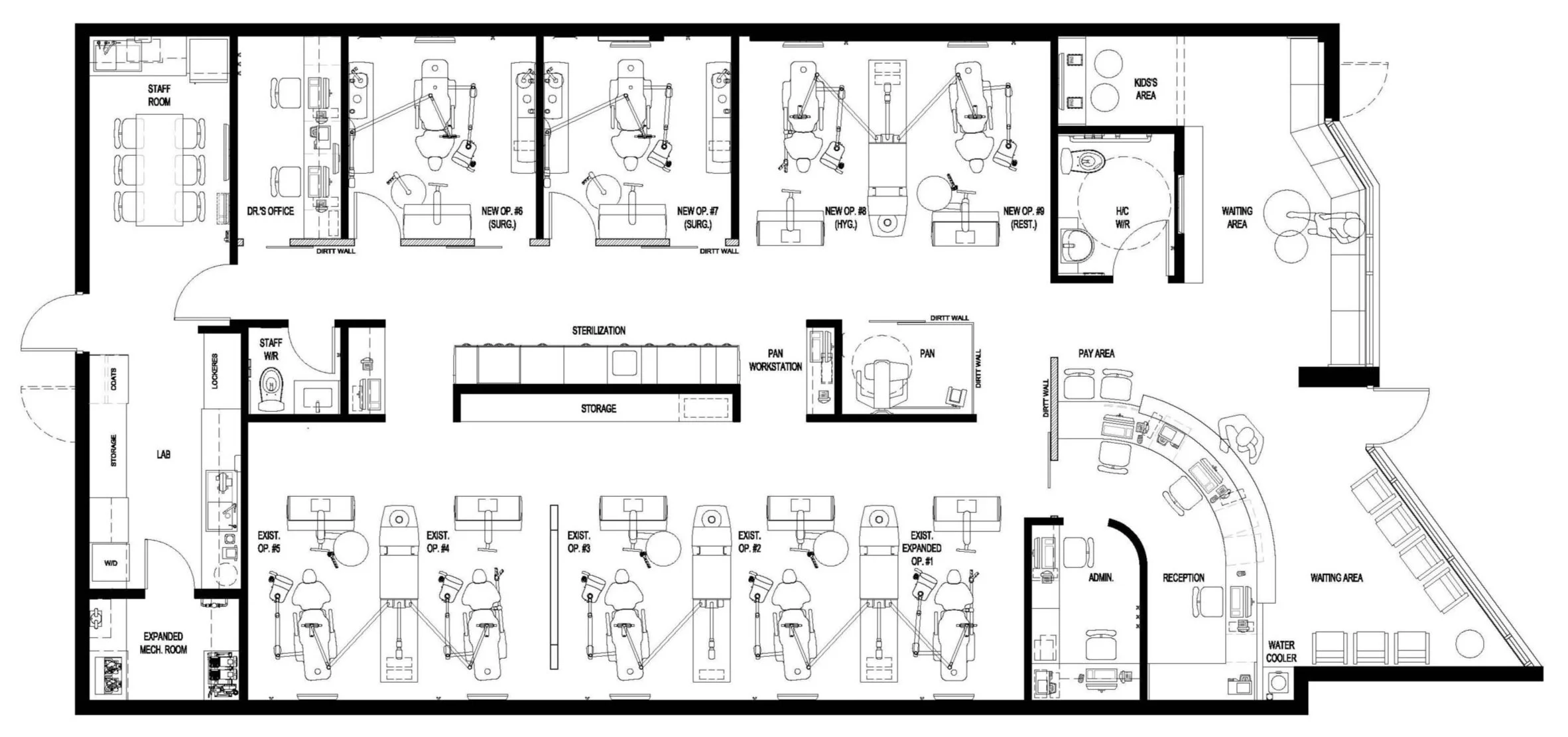
Kensington Square Dental Centre | Burnaby, BC | 2,473 SF | Project completed with Sinclair Dental Co. Ltd.

Modern Times: Clean Lines and Forms. Subtle Geometric Patterns. Orange Accents to Reinforce Branding.

1616.jpg
1616_Concept.jpg
1616_Material Board.jpg