HEALTH & WELLNESS

Previous | Next

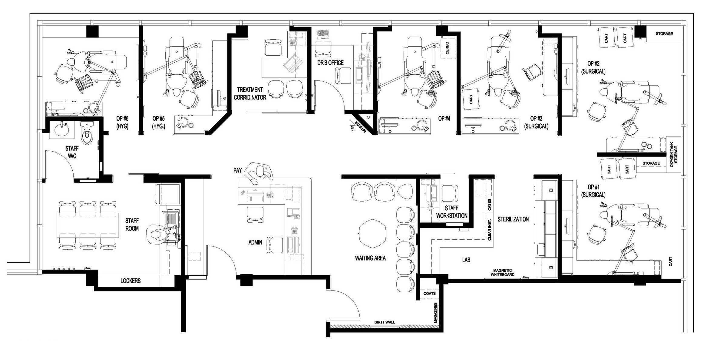
Private Periodontal Practice  | Vancouver, BC | 1,686 SF | Project completed with Sinclair Dental Co. Ltd. 

Rustic Landscape - A workplace that responds to the landscape: The west coast landscape can appear rustic and unruly at times, with this in mind we will create a workplace with order that embraces the views of False Creek and which will respond systematically; reflecting the natural backdrop, with sharp warm wood tones, glazing and preserved plant walls.

1607.jpg
1607_4_Concept_web.jpg