HEALTH & WELLNESS

Previous | Next

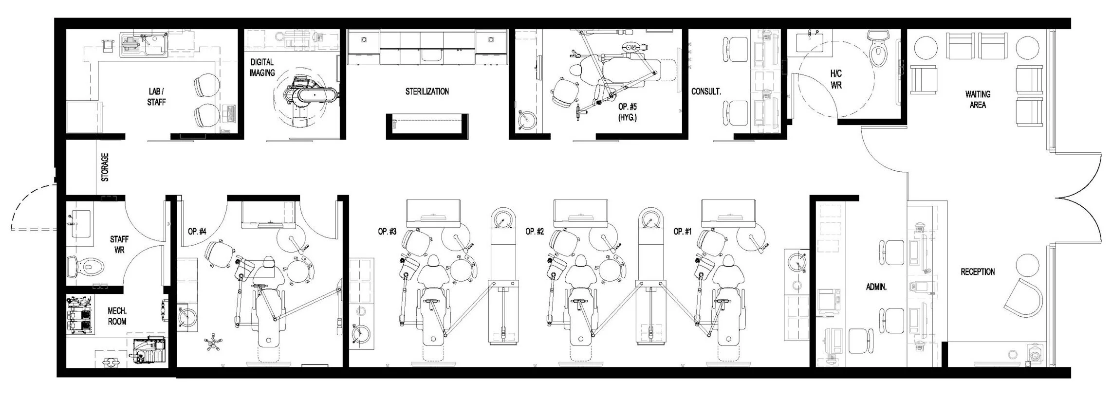
Tsawwassen Commons Dental  | Tsawwassen, BC | Project completed with Sinclair Dental Co. Ltd.

Coastal Above: Sojourn where mountains and lush forests meet the ocean, a clean and airy space with a mix of refined and reclaimed woods and small pops of colour to add youthfulness to a neutral palette.

1640.jpg
1640_Dr. Yee_Concept_2016-01-19.jpg
1640_Materials+%26+Finishes.jpg